12月12日,《中国电信集团有限公司京津冀大数据基地1标段施工资格预审公告》正式发布。

据公告所知,中国电信集团有限公司京津冀大数据基地位于天津市武清区高村镇汇旺路南侧,建设资金1850000000元,建设规模为370500平方米,新建生产力及附属设施。项目投产后,将形成38700个(按照单机架5KW预估)IDC数据机架的装机能力。
本次招标标段为一标段(京津冀大数据基地A7、A8工程施工)。项目总建筑面积51670平方米(地上51670平方米,无地下),共2个单体,其中最大单体27100平方米,地上6层,最高高度42.9米,最大单跨跨度10.2米,最大基坑深度3.9米。结构形式为钢筋混凝土架剪力墙结构。标段投资额24707.15万元,计划工期2026年02月12日至2027年03月08日。

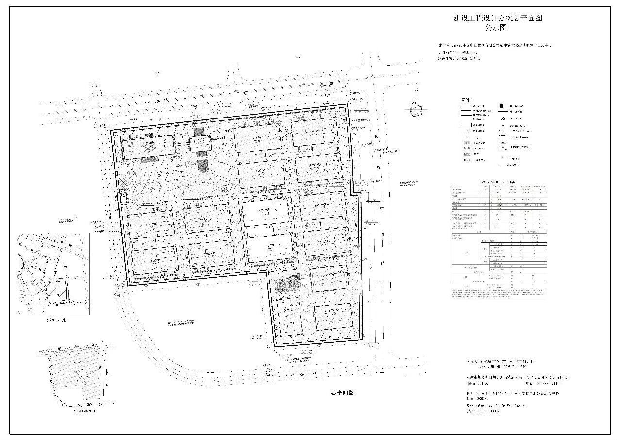
中国电信集团有限公司京津冀大数据基地建设运营中心A7、A8生产楼项目建设工程设计方案总平面图(图源:天津市规划和自然资源局)
资格预审文件的获取时间为2025年12月12日22时00分00秒至2025年12月19日16时00分00秒,通过天津市公共资源交易-投标服务平台获取电子招标文件。此外, 申请人应于2025年12月25日09时30分00秒将资格预审申请文件网络递交至天津市公共资源交易-投标服务平台。
此前,中国电信集团有限公司京津冀大数据基地1标段A3、A4工程施工完成招标,中标单位为中建三局集团有限公司,中标标价214621940元。据了解,该标段工程总建筑面积51285平方米,地上51285平方米,无地下。共2个单体,其中最大单体26690平方米,地上6层,最高高度42.1米,最大单跨跨度10.2米,最大基坑深度3.6米。